佰利乐

新闻动态 List
新闻动态当前位置:网站首页 > 新闻动态

固体混合机原理与选型(一)

[ 发布日期:2022-07-09 点击:1824 来源:洛阳凯正环保工艺设备有限公司 【打印此文】 【关闭窗口】]

固体混合技术主要应用于制药、食品、农药、化工等工业生产,应用极为广泛。在制药生产中,对于原料配制或产品标准化、均匀化,混合机都是不可缺少的装置。

一、混合的作用

混合是指将两种以上组分在干燥状态或有少量流体存在时,在外力作用下使其不均一性不断降低、相互分散而达到均一状态的过程操作,所谓二种以上组分,可以是不同的物质,也可以是同一物质而有不同的物理特性:如含水率不同、颗粒直径不同、颜色不同等等。

二、混合机理

1、对流混合   由于混合机外壳、机内的叶轮或螺旋带等内部构件的旋转运动,促使粒子群大幅度地移动位置,从而形成环流,即许多成团的物料颗粒从混合室的某处移向另一处,而另一处物料作对向移动,这两群物料在对流中进行相互渗透变位而进行混合。

2、剪切混合    混合物料在工作部件作用下彼此形成许多相对滑动的剪切面而发生混合,这是由于粒子群内有速度分布,各粒子间必将相互滑动或碰撞。例如,搅拌叶轮头部和机壳壁面、底面的间隙较小,对粉体凝集团的压缩力、剪切力作用,使粉体团碎裂等原因所引起的混合。

3、扩散混合   相邻两粒子相互变更位置所引起的局部混合。,即混合物料以单个颗粒为单元向四周移动,这种移动类似流体分子的扩散过程,是无序的。

一般来说,各种混合器内,以上3佰利乐种机理都同时存在,所不同的只是依据处理物料的物性和混合器形式的不同,对混合操作的影响程度可以有所差异。

三、混合机种类

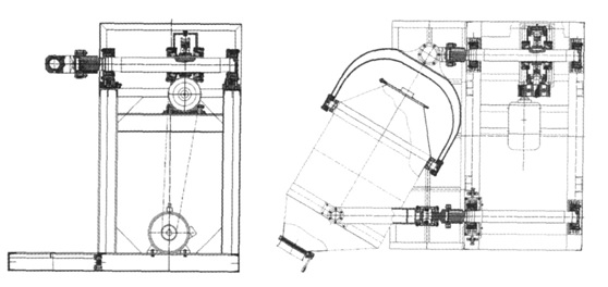
1、容器回转式

佰利乐        容器回转型的特点是混合机的储料槽连续旋转,从而导致槽内物料混合均匀,此类混合机结构简单,混合速度慢,混合度较高,混合机内部清扫容易。适用于那些物性差异小、流动性好的粉体间的混合,也适用于有磨损性的粉粒体的混合。其结构如图所示:

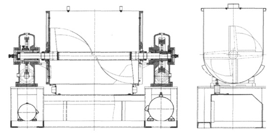
2、机械搅拌式

佰利乐       的储料槽固定不动,利用安装在槽内的搅拌器的旋转达到混合物料的目的,能处理附着性、凝集性强的粉体、湿润粉体和膏状物料,对于物性差别大的物系的混合也很适用。此类混合机装填率高、操作面积小、占用空间小、操作方便。由于可设计成密闭式和安设夹套,所以可在非常温常压下工作,也可以用于反应、制粒、干燥、涂层等复合操作中。缺点:机器的维修和清洗困难,故障发生率高,容器及搅拌机上会部分地固结粉体。其结构如图所示:

 3、气流式

佰利乐        气流式是利用气流的上升流动或喷射作用,使粉体达到均匀混合的一种操作方法。对于流动性好、物性差异小的粉体间混合是很适用的。当间歇操作时,装填率可达70%左右,混合槽可兼作贮槽。