佰利乐

新闻动态 List
新闻动态当前位置:网站首页 > 新闻动态

逆流强力混合机的运行点及优势

[ 发布日期:2016-05-04 点击:4187 来源:洛阳凯正环保工艺设备有限公司 【打印此文】 【关闭窗口】]

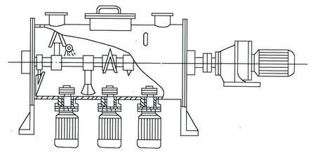
逆流强力混合机生产出的干砂浆质量高且稳定,对设备的磨损较小,降低了设备的运行成本。混合机的混合桶倾斜位置旋转,在其安装的多功能工具引导下,将物料导至搅拌工具,分散的物料被导向相反方向运动;而转子对循环的物料流进行充分混合。

在处理各种固体和粉体物料时,混合过程是重点,尤其在干粉砂浆行业需要添加各种微量但价格昂贵的外加剂和颜料,如果基础物料没有得到充分的混合,会造成原料成本的增加。因此是否选择性能优良的强力混合机成为在行业中地位的决定性因素。

强力混合机

对于大多数的强力混合机来说,混合和“反混合”互相作用。混合时间决定了可能达到的混合果,长时间的混合会导致混合质量的下降。在混合干料时,离心力会使不同大小颗粒产生的水平和垂直的分离。导致在强力混合机的边缘和表面区域大颗粒聚结。

经验表明,即使是混合干料时,物料在强制三维物料流的作用下每几秒钟进行次循环,可以获得均匀度非常高的、分散性好的混合物。该混合机的混合能力比普通混合机高出30%,所以带倾斜式混合盘的混合机混合果出色。

逆流强力混合机的倾斜的混合盘,即使只部分装填,也会达到满意的混合果。不但如此强力混合机的清洁也很方便,混合工具和耐磨层也易于接近,更换易损件非常方便。